Back Nine

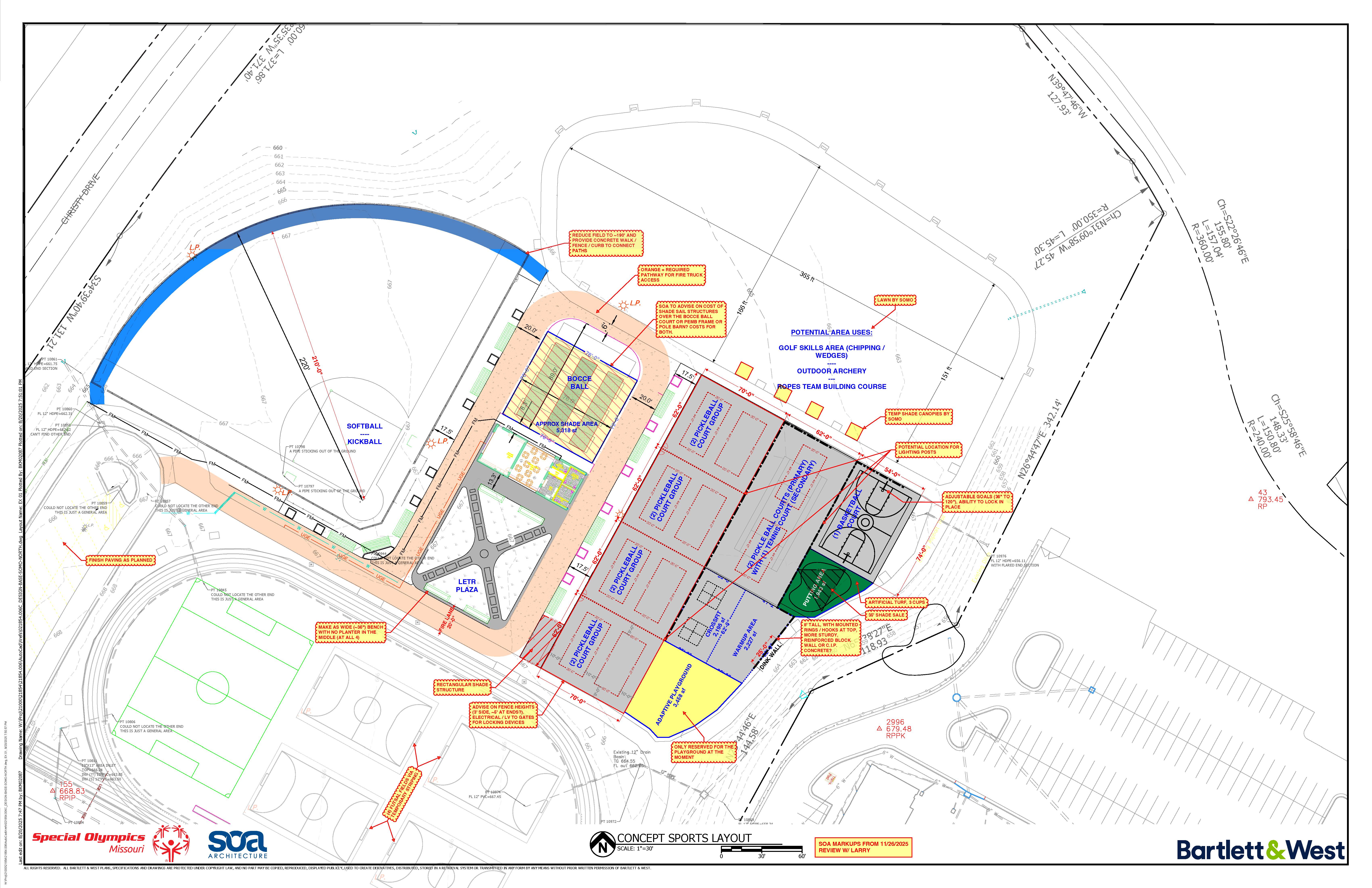
The Back Nine will be a new sports complex behind the Training for Life Campus—including pickleball courts, softball/kickball field, plaza and walking paths, and the surrounding multi-use activity areas. It will be a unified, inclusive space for training, competition, and community recreation.

021854.006C SOMO NORTH CONCEPT SPORTS 2025 11 20 Option2 MARKUPS
Knights Of Columbus Pavilion From SW Wm